你的瀏覽器已禁用javascript,請啟用javascript,否則網頁將非正常運行!


  • 深夜福利影院,深夜网站免费观看,深夜国产福利APP导航,深夜福利精品午夜成人

    學校深夜网站免费观看工程


  • 深夜福利影院,深夜网站免费观看,深夜国产福利APP导航,深夜福利精品午夜成人

    COMPOSITION

    學校食堂組成部分

    售賣出餐區
    售賣出餐區
    就餐大廳
    就餐大廳
    深夜网站免费观看
    深夜网站免费观看

    學校食堂由這幾個部分組成:深夜网站免费观看、售賣出餐區、就餐大廳等。其中,就餐大廳占用大部分建築麵積,其次是深夜网站免费观看。成都貴族學校——成都新川外國語學校食堂一、二、三層為學生食堂區,四層為教職工食堂區。

    REGIONALDIVISION

    學校食堂區域劃分

    隨著我國教育事業的迅猛發展,國家持續加大教育經費的投入,與之相配套的教育基建設施也在大規模建設之中。各地方政府、教育局、學校紛紛建造大型配套的學校食堂。新建的食堂在就餐模式、經營模式、建築規模和使用功能等方麵均與傳統的學校食堂有了較大的變化。
    不同的就餐、經營模式有不同的建築空間與之相適應,伴隨著就餐、經營模式的變化,如今,學校食堂大致分為三分式:深夜网站免费观看操作區、備餐售賣區及就餐區。且各功能空間的劃分更加明確固定,為我國學校食堂較為常見的模式。

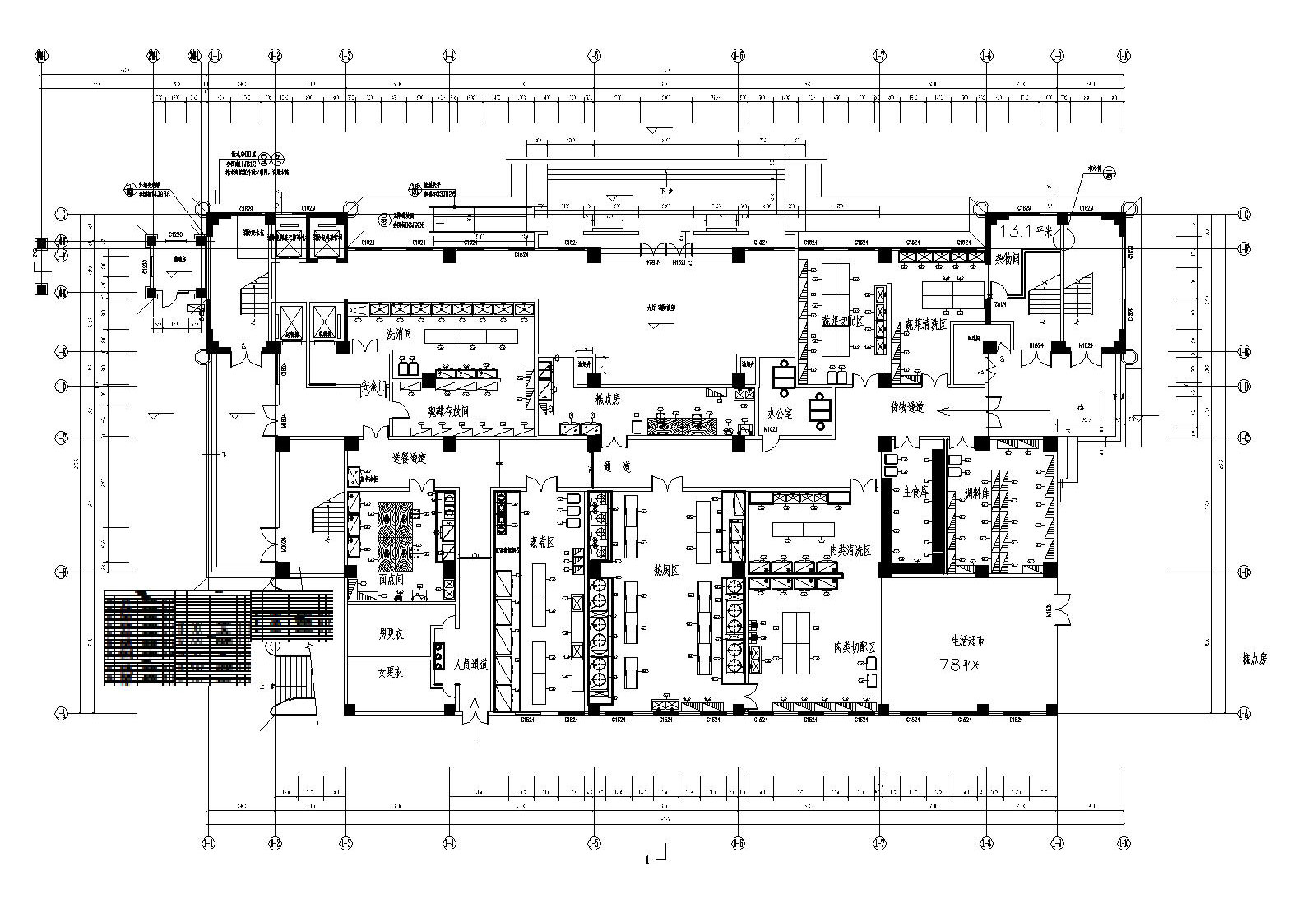
    學校食堂區域劃分平麵圖

    RegionalDivision

    學校食堂特殊性

    非盈利性

    經營上的非贏利性。不以贏利為目的,加上國家給予的優惠政策,餐品價格相對較低

    大規模配送性

    大規模的配送性。對於就餐者眾多的學校食堂,為保證食品安全,主要食材應由供應商統一定點配送。

    單一性

    就餐者的單一性。學校食堂的就餐者為本校師生,人數較穩定。

    季節性

    經營上的非贏利性。不以贏利為目的,加上國家給予的優惠政策,餐品價格相對較 低

    Design considerations

    深夜福利影院對學校設計的考量

    高校深夜网站免费观看工程應注意的事項

    高校食堂不以盈利為目的,飯菜價格相對較低。在此前提下,應降低建築物的造價和使用 過程中的運營成本。高校食堂有別於中小學食堂,雖同屬學校食堂,但具備一定的特殊性。 由於高校食堂采購次數多並擁有大容量儲備倉庫,可以在食堂中減少冷庫及庫房的建築麵積。 又因高校深夜网站免费观看工程項目油煙較重,食品監管部門對學校的食品質量監管會嚴格把控,所以, 高校食堂對安全的抽油煙係統和綠色環保的深夜网站免费观看設備有更高要求,而優伯特商用廚具能最 大限度的滿足高校食堂的需求

    Implementation process

    工程實施流程

    Why did you choose us?

    為什麽選擇深夜福利影院

    • 豐富的深夜网站免费观看設計經驗
    • 專業化施工隊伍
    • 實力雄厚品質保障
    豐富的深夜网站免费观看設計經驗
    豐富的深夜网站免费观看設計經驗
    豐富的深夜网站免费观看設計經驗
    豐富的深夜网站免费观看設計經驗
    專業化施工隊伍
    專業化施工隊伍
    專業化施工隊伍
    專業化施工隊伍
    實力雄厚品質保障
    實力雄厚品質保障
    實力雄厚品質保障
    實力雄厚品質保障

    Service case

    工程服務深夜福利精品午夜成人

    成都七中
    成都七中
    西南民族大學
    西南民族大學
    西南航空學院
    西南航空學院
    四川大學
    四川大學
    攀枝花米易二小
    攀枝花米易二小
    攀枝花九中食堂
    攀枝花九中食堂
    貴州遵義新藍外國語學校
    貴州遵義新藍外國語學校
    成都新川外國語學校
    成都新川外國語學校

    About Ubat

    關於深夜福利影院

    網站地圖
  • 
    網站地圖